悬浮楼梯
▍核心技术原理
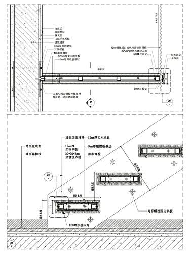
通过隐藏式支撑系统实现悬浮视觉效果,采用单点锚固+多向受力的结构设计
墙体承重端:采用预埋钢结构或化学锚栓固定(M20螺栓,植入深度≥200mm)
悬挑端支撑:集成于扶手的钢龙骨系统(主龙骨壁厚≥6mm)
荷载传递路径:踏步→次龙骨(间距≤400mm)→主梁→预埋结构


▍材料选型标准
主体结构材料:
钢构件:Q345B型材(屈服强度≥345MPa)
• 主梁:H型钢 200×100×8mm
• 次梁:槽钢 100×50×5mm
混凝土基础:C30(强度等级30MPa)
连接件:304不锈钢(M12化学螺栓)
饰面材料:
木质踏板:F☆☆☆级防腐橡木(含水率8-12%)
玻璃构件:12.76mm夹胶钢化玻璃(PVB胶膜0.76mm)
金属饰面:3mm拉丝不锈钢(表面处理:8K镜面)
▍结构设计要点
承重标准:
活荷载:≥2.0kN/m²(住宅标准)
集中荷载:1.5kN作用于任意点
挠度限值:L/250(L为悬挑长度)
连接节点设计:
1、墙体锚固节点
预埋钢板:300×300×20mm(Q235B)
抗剪键设置:φ20栓钉@150mm
焊接要求:全熔透焊缝(焊脚高度≥8mm)
2、悬挑梁连接
销轴连接:φ50不锈钢销轴(承载力≥50kN)
抗震构造:设置2mm橡胶垫片缓冲
▍施工工艺标准
饰面安装:
玻璃安装:硅酮结构胶粘接(粘结宽度≥15mm)
木踏板安装:预留2mm伸缩缝(填充弹性密封胶)
表面处理:氟碳喷涂(膜厚≥35μm)
防锈处理:Sa2.5级喷砂除锈+环氧富锌底漆(80μm)
尺寸公差:
踏步高度差:≤3mm
扶手直线度:≤2mm/2m
玻璃平整度:≤1.5mm/m
▍安全防护措施
防滑处理:
踏步面防滑槽:深2mm,间距15mm
玻璃表面处理:防滑釉面(摩擦系数≥0.6)
护栏系统:
立柱间距:≤1100mm
玻璃夹持力:≥1.5kN/m
扶手抗冲击:能承受50kg集中荷载
注:本方案需经结构工程师验算确认,施工前应进行1:1实物节点试验,荷载测试合格率达100%后方可实施。





工艺节点及现场照片
本技术方案符合:
- GB50205《钢结构工程施工质量验收规范》
- JGJ113《建筑玻璃应用技术规程》等现行标准要求
原文链接dop设计